ÄÄÇ»ÅÍ ¶óÀÎ
Name : °ü¸®ÀÚ Hits : 56

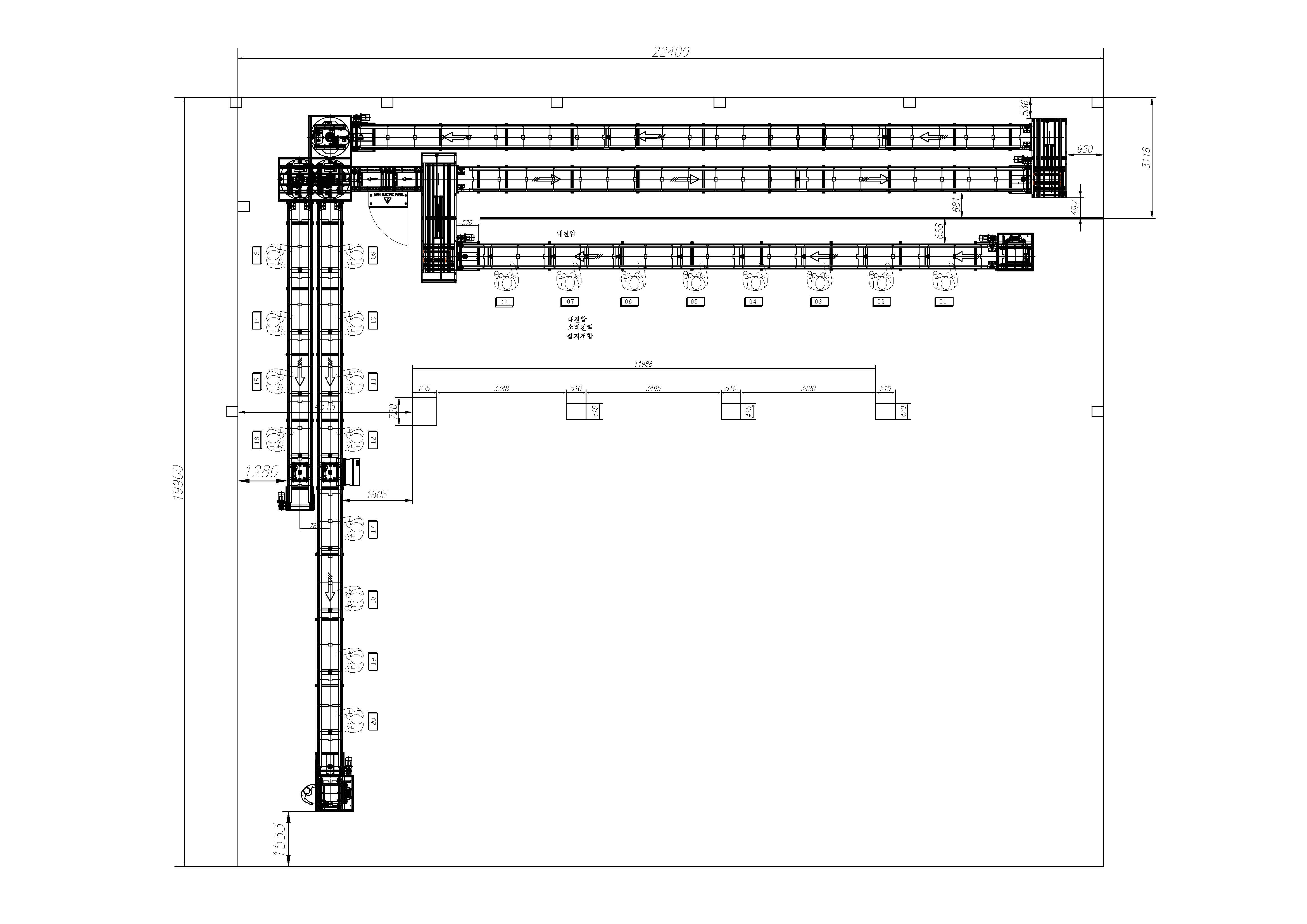
D ¾÷ü ¾È»ê ½Å»ç¿Á¿¡ ¼³Ä¡ÇÕ´Ï´Ù
8¿ù1ÀÏ ½ÃÀÛÇÏ¿© 9¿ùÁß¼ø¿¡ ¿Ï·á µÊ´Ï´Ù.
ÃÑ ¶óÀαæÀ̴ 100M ÀÔ´Ï´Ù
¼³ºñ »çÀÌŬŸÀÓÀº 30ÃÊ ÀÔ´Ï´Ù

ÀÛ¼ºÀÏ : 2025-08-14

ÄÄÇ»ÅÍ ¶óÀÎ.jpg